Change of plan, I now have some very smart '98 MX5 seats with headrests in black that will go well with the interior.
Tips:
13-07-08:
Change of plan, I now have some very smart '98 MX5 seats with headrests in black that will go well with the interior.
![]() Seats as purchased in perfect condition. Watch this section in later months for the modifications to fit these seats. I can't wait for the extra comfort and support. |
The original seats will be stored for future restoration. |
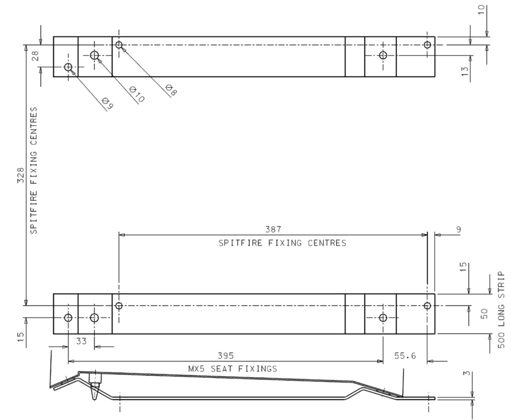
![]() Initial sketch of one set of adaptors. Will add link later for full size pdf - email me for now. |
![]() Spitfire passenger seat removed to check measurements and fit of seat. Seats just fit on original runners with new brackets to suit fixings in floor. |
![]() Underside view of MX5 seat with mounting brackets fitted. |
![]() Side view of support brackets fitted to standard seat runners - no mods to the seats at all. |
![]() Passenger seat in and adjusted. Soft top fits over OK. Seat is very comfortable and supportive, slightly higher than I would have liked but doesn't seem to be an issue, and I'm over 6 ft. |
![]() Seat adaptor folded ready for drilling. |
![]() Seat adaptors fitted - might be best to tack / bond nuts and washers to underside first. |
![]() Seats locked in position - tight on width but a good option. |